供应求购
扫一扫,商机无限

您所在的位置:首页 > 供应信息 > 建材 > 供应详情

供应:平面铰链波纹补偿器(JJL)
发布日期:2017-9-12 22:08:49
项目联系人:卜经理
项目电话:13803458726
17
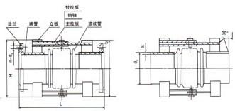
【内容摘要】  平面铰链波纹补偿器是由接管、波纹管及与接管相连的一对铰链构成。补偿器的铰链具有承受内压推力的能力。 性能特点:     平面铰链波纹补偿器用于吸收单平面的角向位移。 安装使用注意事项:      1.不锈钢波纹补偿器两个或三个配套使用。     2.安装时不锈钢补偿器的铰链转动平面必须与位移平面一致。 

  平面铰链波纹补偿器是由接管、波纹管及与接管相连的一对铰链构成。补偿器的铰链具有承受内压推力的能力。
性能特点:
    平面铰链
波纹补偿器
用于吸收单平面的角向位移。
安装使用注意事项: 
    1.不锈钢波纹补偿器两个或三个配套使用。
    2.安装时不锈钢补偿器的铰链转动平面必须与位移平面一致。

联系电话:13803458726 

太原客服中心:0351-6584449 石家庄客服中心:0311-86978585 沈阳客服中心:024-62579240 郑州客服中心:0371-63818890 西安客服中心:029-89389805 重庆客服中心: 023-89128490 成都客服中心:15713523760
呼和浩特客服中心:15713523760
晋公网安备 14019902000100号 晋公网安备 14019902000100号
地址:太原高新区中心北街8号电子商务产业园A座314、315室 | 邮编:030024 E-mail:yyzh@yyzh.cn 晋icp备15007585号-1
全国免费热线:
微信公众平台

微信公众平台

商业联盟号

商业联盟号